产品展示|Products

Parker MV/9MV、6MV系列管式针阀

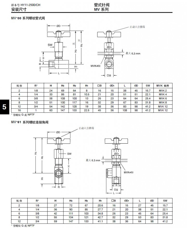
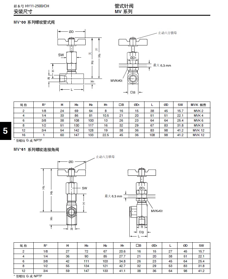
MV系列

MV系列针阀可以选择30度-锥面、V形切口或矩形切口的阀芯。节流口的形状影响流量调节的精度,其与压力和粘度有关。针状阀芯为不锈钢并且在阀筒内形成环状间隙。可以选择钢质或黄铜阀体以及管式安装或面板安装。

MVaMVb6MVa6MVb